Gamle Alværnvei 67
Velg husmodell
5 husmodeller med komplett kostnadsoverslag for Gamle Alværnvei 67 (skrånende tomt). Priser per mai 2026.
Topp 3 – best fortjenestepotensial
Hedalm-Anebyhus
1
Blink Hus
1
ABChus
3

Wide A
ABChus
Funkishus med stor stue, Drømmekjøkkenet, Siemens hvitevarer, smarthus og panoramautsikt. 3 soverom + hybel. Inkluderer støpt plate/grunnmur og 1-trinns byggesøknad.
160.3 m²
BRA
4
Soverom
2
Bad
2
Etasjer
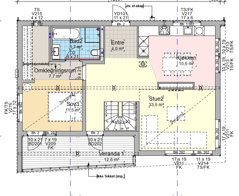
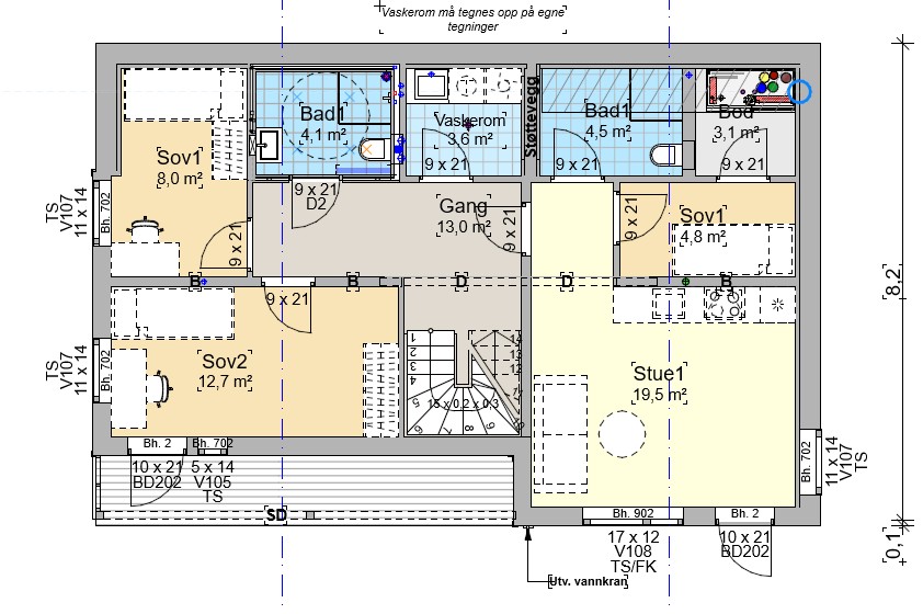
Plantegninger – Wide A

Hovedetasje – stue, kjøkken, bad, entré, veranda

Underetasje – stue 2/hybel, 3 soverom, bad 2, bod
Fasader – Wide A

Inkludert i Wide A
Kostnadsoverslag – Wide A
Realistisk estimat per mai 2026.
Grunnmur inkludert – ABChus inkluderer støpt plate/grunnmur i husmodellprisen.
Hva er boligen verdt etterpå?
Kilde: Krogsveen, mai 2026
Boligareal
160 m²
m²-pris nybygg
78 000 kr
Estimert verdi
12 500 000 kr
Byggekostnad
9.5M
Markedsverdi
12.5M
Potensiell verdiskaping
+ ca. 3.0 MNOK
Bilder
11 bilder fra Gamle Alværnvei 67

Oversikt over tomten med utsikt over Oslofjorden.
Tegning og byggesøknad
Vår samarbeidspartner Tegnebua gir fastpris på å tegne og søke om husmodellen du har valgt – tilpasset din tomt.
Tegnebua
Offisiell Tomtly-partner
Tegning
- Situasjonsplan tilpasset tomten
- Plantegninger (alle etasjer)
- Fasadetegninger (alle sider)
- Snitt-tegning
- Tilpasning av valgt husmodell til regulering
- Utomhusplan med terrengbearbeiding
Byggesøknad frem til rammetillatelse
- Ansvarlig søker (SØK)
- Komplett byggesøknad til kommunen
- Nabovarsling og oppfølging av merknader
- Evt. dispensasjonssøknad
- Gjennomføringsplan
- Oppfølging til godkjenning
Tegning og søknad frem til rammetillatelse
50 000 kr + mva
fastpris
Estimert leveringstid: 4 uker fra bestilling
Prisene gjelder for valgt husmodell. Endelig pris bekreftes etter gjennomgang av tomten.
Tidsplan
Fra tomtekjøp til innflytting. Nabovarsling allerede gjennomført for Wide A.
Uke 1
Kjøp av tomt
Avtale signeres. Overtakelse etter nærmere avtale.
Uke 2–3
Velg husmodell og tegning
Gjennomgang av husmodeller med Tomtly. Tegnebua utarbeider tegninger.
Uke 3–4
Søknad ferdigstilles
Komplett byggesøknad sendes Nesodden kommune.
Uke 4–6
Nabovarsling
Naboer varsles. 14 dagers varslingsfrist. Eventuelle merknader behandles.
Uke 6–20
Saksbehandling
Kommunal behandling. Typisk 8–12 uker. Tillatelse innvilges.
Uke 20–30
Produksjon starter
Husleverandør starter produksjon. Grunnarbeider forberedes og utføres.
Uke 30–52
Bygging og innflytting
Huset monteres og ferdigstilles. Fra kjøp til nøkkel ca. 12 måneder.
Reguleringsanalyse
Vestfjordtomtene – søndre del (vedtatt 2005-12-15)
Arealformål
Boligbebyggelse – åpen småhusbebyggelse (B4)
20%
Maks BYA
9 m
Maks høyde
2
Maks etasjer
4 m
Byggegrense
Reguleringsbestemmelser
- 1Maks BYA 20% (180,1 m²)
- 2Maks gesimshøyde 7,5m (brattere enn 1:4), 9,0m (øvrig)
- 3Underetasje tillatt der terrenget tillater det
- 4Minste tomtestørrelse 900 m²
- 5Reguleringsplan: Vestfjordtomtene – søndre del (Plan nr. 111)
- 6Vedtatt 15.12.2005
Nabolaget
Alværn på Nesodden. Fantastisk fjordutsikt (+81 moh), etablert boligområde med naturskjønne omgivelser. Kort vei til Tangen brygge og båt til Oslo.
Innen 5 min med bil
Buss til Tangen/Oslo
Kollektivtransport
1 min
300 m
Tangen brygge (båt til Oslo)
Kollektivtransport
3 min
2000 m
Alværn ungdomsskole
Skole
2 min
800 m
Dagligvare Nesoddtangen
Dagligvare
3 min
1500 m
Skog og turområder
Park/friområde
1 min
50 m
Fjorden / badeplass
Badeplass
2 min
1200 m
Dokumenter
Dokumentasjon for tomten.
Risikoanalyse
Risikofaktorer
| Kategori | Beskrivelse | Sannsynlighet (1–5) | Konsekvens (1–5) | Risiko (S × K) | Tiltak |
|---|---|---|---|---|---|
| Regulering | Innenfor gjeldende plan | 1 | 2 | 2 | Alle modeller innenfor BYA og høydekrav |
| Grunnforhold | Skrånende tomt, fjell/morene | 2 | 2 | 4 | Tilbud innhentet fra S-Anlegg (652 625 kr inkl. mva) |
| Marked | Prisendring | 2 | 2 | 4 | Konservative estimater |
| Nabovarsling | Allerede gjennomført for Wide A | 1 | 1 | 1 | Nabovarsling gjennomført uten merknader |
Skala 1–5 der 1 = svært lav og 5 = svært høy. Risikoverdi = Sannsynlighet × Konsekvens.
Anbefalinger
- 1Nabovarsling allerede gjennomført for Wide A – lav risiko
- 2Alle 4 husmodeller er innenfor reguleringsplan
- 3Samkjøring med nabotomt kan spare ca. 150 000 kr
Gamle Alværnvei 67
Kontakt Tomtly
Ta kontakt med oss – vi hjelper deg med å se hva som er mulig å få til på tomten.