Bjørnemyrveien 20
Tomtescore
Utmerket
Tomtescore
Tomten scorer 84 av 100. Flat tomt, lett å bygge. Sterk etterspørsel på Nesodden. Godkjent fradeling og komplett dokumentasjon. 4 husmodeller med totalbudsjett 7,9–9,4 MNOK.
Nærhet til sentrum, skole, kollektiv
Utnyttelsesgrad, fleksibilitet, hensynssoner
Helning, grunnforhold, naturfare
Vei, vann, avløp, strøm, fiber
Pristrend, etterspørsel, omsetningshastighet
ROI, byggekostnad, risiko
Bilder
7 bilder fra Bjørnemyrveien 20

Husmodellen Skogly fra Hedalm-Anebyhus plassert på Parsell B.
Velg husmodell
4 husmodeller med komplett kostnadsoverslag for Tomt B (flat tomt).


Husmodell: Skogly
Hedalm-Anebyhus
Moderne, kompakt bolig perfekt tilpasset skrånende tomter. Stor og åpen stue/kjøkkenløsning med balkong. To plan med inngang fra begge etasjer.
126.1 m²
Innvendig BRA
4
Soverom
2
Bad
2
Etasjer
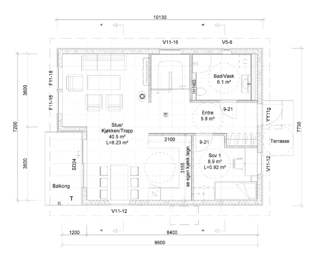
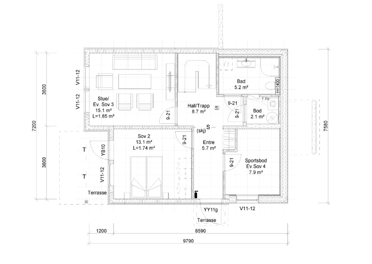
Plantegninger – Skogly

Hovedetasje – stue, kjøkken, bad og soverom 1

Underetasje – 3 soverom, bad og sportsbod
Inkludert i Skogly
Kostnadsoverslag – Skogly (flat tomt)
Realistisk estimat basert på innhentede tilbud og kjente kostnader per februar 2025.
Hva er boligen verdt etterpå?
Boligareal
136 m²
m²-pris nybygg
70 000 kr
Estimert verdi
9 520 000 kr
Byggekostnad
7.9M
Markedsverdi
9.5M
Potensiell verdiskaping
+ ca. 1.6 MNOK
Tegning og byggesøknad
Vår samarbeidspartner Tegnebua gir fastpris på å tegne og søke om husmodellen du har valgt – tilpasset din tomt.
Tegnebua
Offisiell Tomtly-partner
Tegning
- Situasjonsplan tilpasset tomten
- Plantegninger (alle etasjer)
- Fasadetegninger (alle sider)
- Snitt-tegning
- Tilpasning av valgt husmodell til regulering
- Utomhusplan med terrengbearbeiding
Byggesøknad frem til rammetillatelse
- Ansvarlig søker (SØK)
- Komplett byggesøknad til kommunen
- Nabovarsling og oppfølging av merknader
- Evt. dispensasjonssøknad
- Gjennomføringsplan
- Oppfølging til godkjenning
Tegning og søknad frem til rammetillatelse
50 000 kr + mva
fastpris
Estimert leveringstid: 4 uker fra bestilling
Prisene gjelder for valgt husmodell. Endelig pris bekreftes etter gjennomgang av tomten.
Tidsplan
Fra tomtekjøp til innflytting. VA-søknad, overvannsrapport og avkjøringstillatelser er allerede utarbeidet.
Mars 2026
Kjøp av tomt
Avtale signeres. Overtakelse estimert 1. mai 2026.
Uke 1 etter kjøp
Tegninger og nabovarsling klar
Tegningsgrunnlag ferdigstilles og nabovarsler sendes ut.
Uke 1–3
Nabovarslingsperiode
14 dagers nabovarsling. Søknadsdokumenter forberedes.
Ca. 1. april 2026
Byggesøknad sendes
Komplett søknad sendes kommunen.
Mai 2026
Byggetillatelse innvilget
Estimert 3 ukers saksbehandling.
Juni 2026
Byggestart
Grunnarbeider starter. Hus leveres og monteres.
Nov/des 2026
Ferdigstillelse og innflytting
Fra kjøp til nøkkel på under ett år.
Reguleringsanalyse
Reguleringsplan for Bjørnemyr (vedtatt 2018-03-20)
Arealformål
Boligbebyggelse – frittliggende småhusbebyggelse
20%
Maks BYA
9 m
Maks høyde
2
Maks etasjer
4 m
Byggegrense
Reguleringsbestemmelser
- 1Maks BYA 20% (121,0 m²)
- 2Maks gesimshøyde 7m, mønehøyde 9m
- 3Godkjent delesøknad og matrikkelbrev
- 4VA-søknad, overvannsrapport og avkjøringstillatelse utarbeidet
Nabolaget
Etablert boligområde på Bjørnemyr, omgitt av skog og natur. Kort vei til sjøen. Barnevennlig. Ca. 30 min til Oslo med buss/båt.
Innen 5 minutters gange
Buss til Tangen/Oslo
Kollektivtransport
5 min
400 m
Bjørnemyr barnehage
Barnehage
4 min
350 m
Skog og turområder
Park/friområde
1 min
100 m
5–10 minutters gange
Bjørnemyr skole
Skole
7 min
600 m
Dagligvare Bjørnemyr
Dagligvare
6 min
500 m
Dokumenter
Komplett dokumentasjon for tomten.
Risikoanalyse
Risikofaktorer
| Kategori | Beskrivelse | S | K | Risiko | Tiltak |
|---|---|---|---|---|---|
| Regulering | Godkjent fradeling, innenfor plan | 1 | 2 | 2 | Delesøknad allerede godkjent |
| Grunnforhold | Flat tomt, kjente forhold | 1 | 2 | 2 | Tilbud på grunnarbeid innhentet |
| Marked | Prisfall i segmentet | 2 | 2 | 4 | Konservativt estimat |
| Kostnad | Overskridelse byggebud | 1 | 2 | 2 | Fastpriser fra leverandører |
S = Sannsynlighet (1-5), K = Konsekvens (1-5), Risiko = S × K
Anbefalinger
- 1Svært lav risiko – godkjent fradeling, fastpriser og kjente kostnader
- 2Fra kjøp til nøkkel på under ett år
Bjørnemyrveien 20
Interessert?
Ta kontakt for mer informasjon om denne tomten og mulighetene.
Prismodell